png电子平台

洛阳png电子平台防火玻璃有限公司欢迎您的到访!

洛阳png电子平台防火玻璃有限公司

全国咨询热线400-0379-0020379-65512323

产品展示

钢质隔热防火窗

发布时间:2019-03-19来源:点击:15682

  • 钢质隔热防火窗

                                           钢质隔热防火窗

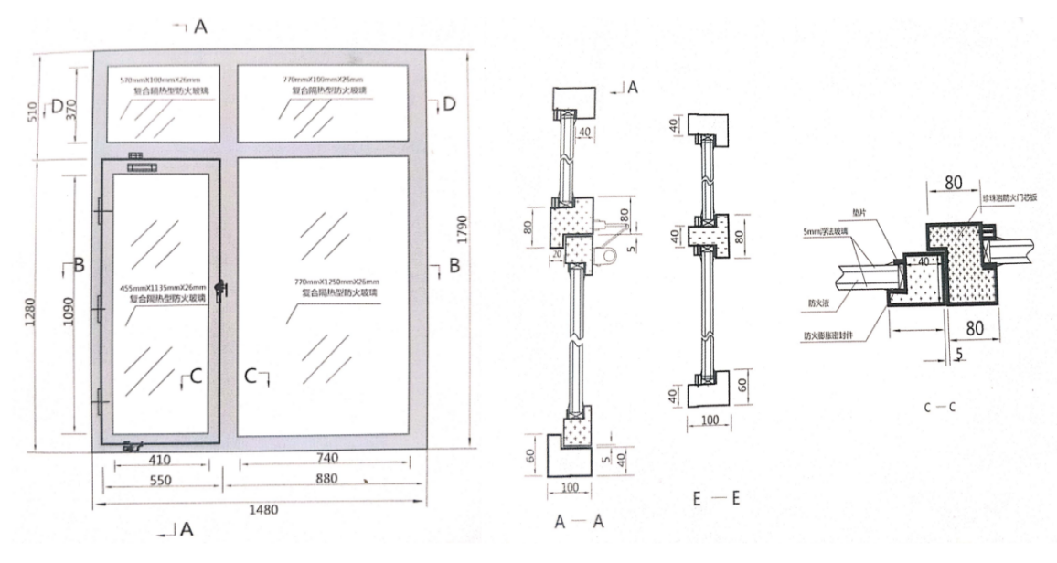
钢质防火窗一般是有钢窗框,钢窗扇及防火玻璃组成,能起到隔离和阻止火势蔓延,并在一定时间内能满足耐火稳定性,耐火完整性,耐绝热性的窗。一般设置在防火间距不足部位的建筑外墙上的开口和天窗,建筑内的防火墙或者防火墙上需要观察等部位以及需要防止火灾竖向蔓延的外墙开口部位。复合《防火窗》GB 16809-2008的要求。

1、窗框框架采用具有一定强度使其足以保障构建完整性和稳定性的钢框架或木框架。

2、钢框架与压条可选用镀锌钢板或不锈钢板。其选材标准符合GB12955《钢质防火门通用技术条件》中5.1条的规定。

3、木框架与压条其选材标准应符合GB14101《木质防火门通用技术条件》中5.1.1条的规定。

4、钢、木框架内部的填充材料应采用不然性材料

5、防火玻璃可选用不影响防火窗耐火性能试验合格的产品,玻璃透光度不小于相同层数普通平板玻璃的75%。

6、框架与防火玻璃之间的密封材料应采用难燃材料。火灾时能起到防火隔烟的作用。

7、五金配件应为经检测合格的定型配套产品。

 

image.pngimage.png 

产品优点:

1、在一定的时间内,玻璃连同框架能满足耐火稳定性、完整性、隔热性。

2、在火灾发生时,活动窗扇在防火窗启闭装置的作用下60秒内自动关闭,防止火势蔓延。

3、满足外窗的气密性、水密性、抗风压要求。

4、广泛用于高层建筑隔离和阻止火势蔓延要求的区域。

使用范围:

防火窗主要用于建筑物的防火分区,逃生通道,避难走道,防火隔墙,避难层防火窗等地方,有防火隔热和自动关闭功能,起防火分隔作用。


分享到:0 用手机看
#

拍下二维码,信息随身看

试试用微信扫一扫,
在你手机上继续观看此页面。

TOP

QQ客服

400-0379-002